Аренда ПСН площадью 34 м2
Стоимость аренды
40800
руб./месяц
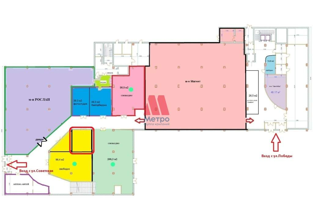
Арт. 89265281. Предлагаем в аренду помещение 34 кв.м. на 1ом этаже в торгово/деловом-центре по адресу: Ул. Победы д. 6 в ТЦ «Дом Моды».
Торговый модуль расположен при входе здание, на внутреннем трафике в магазин МАГНИТ и ПВЗ Wildberries. Квадратная форма помещения, вход напротив входа в ПВЗ Wildberries. Электричество по счетчикам. Помещение свободно с 1 декабря 2025 г. (возможно по договоренности раньше) . В здании расположены: пункт выдачи «Wildberries», «Магнит», «Детский мир», детский развивающий центр Леонардо парк, арена виртуальной реальности WARРOINT. На 1-3 этажах здания расположены в основном торговля и услуги, на 4-6 этажи здания - офисы. Развитая инфраструктура вокруг. Транспортная доступность (в шаговой доступности один из основных транспортных узлов города) . Две зоны парковки - платная перед фасадом здания (с возможностью приобретения абонементов по доступу на месяц) и бесплатная с торца здания. -------------------------------------------------------------- Без комиссии, аренда от собственника! -------------------------------------------------------------- ГК Метро - лидер рынка коммерческой недвижимости Ярославля. У нас самый большой портфель недвижимости и наибольшая выгрузка рекламы на отраслевых площадках. -------------------------------------------------------------- 1. Больше информации по телефону и в форме чата. 2. По запросу предоставим расширенный пакет фотографий, поэтажные планы и техническую документацию. 3. Для иногородних клиентов оперативно покажем объект по видеосвязи. 4. Приглашаем посредников к сотрудничеству на выгодных условиях. 5. Если этот объект не понравился по фотографиям и описанию - обращайтесь, предложим альтернативу. 6. Фиксируем звонки в режиме 24/7, для Вашего удобства работает контакт-центр. Общая стоимость: 40800 руб./месяц Общая площадь: 34 кв. м Этаж/этажность: 1/6 Комиссия: без комиссии |
2180242 15 Декабря 2025 просмотров 15 |
Добавить комментарий
Похожие объявления










